Abwasserhebeanlage Muli-Nova DDP
Produktvorteile
- Geprüft gemäß DIN EN 12050‑1
- Frei wählbare Zuläufe
- Förderhöhen bis zu 30 m möglich
- 2 Behältergrößen wählbar (430/550 l)
- Leicht zu wartender Rückflussverhinderer (patentiert)
Produktinformationen
- Anwendungsbereiche
- Mehrfamilienhäuser
- Bürogebäude
- Industriegebäude
- Hinter Fettabscheidern bis zu NS 22,5 - in Verbindung mit Lufteinperlung
- Salzhaltiges Rückspülwasser aus Ionentauscher- Enthärtungsanlagen
- Chlorhaltiges Abwasser aus Hallenbäder (0,3 – 1,0 mg/l Chlorgehalt)
- Sammelbehälter aus Polyethylen
- Grundablass/Anschluss Handmembranpumpe R 1½"
- Revisionsöffnung zur einfachen Wartung, Durchmesser: 250 mm
- Befestigungsset zur auftriebssicheren Verankerung
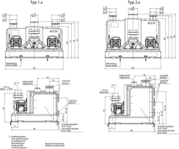
- DDP 1.x:
- Horizontale Zulaufstutzen 1x DN 100, 1x DN 150
- Vertikale Zulaufstutzen: 1x DN 100, 3x DN 150, 1x DN 100 (Entlüftung)
- DDP 2.x:
- Horizontale Zulaufstutzen 3x DN 150
- Vertikale Zulaufstutzen: 1x DN 100, 2x DN 150, 1x DN 200, 1x DN 100 (Entlüftung)
- Darüber hinaus frei wählbare Stutzen per Bohrkrone+Dichtung
- Anschluss Druckleitung
- Patentierter Klappen- Rückflussverhinderer mit Anlüftschraube
- Ablasshahn für erleichtertes Entleeren
- Spezial-Befestigungsstück DN 80 zum elastischen Anschluss der Druckleitung mit 108 – 114,3 mm Rohraußendurchmesser (optional 88 – 93 mm)
- Anschlussflansch für Absperrschieber DN 80 PN 16
- 2 Pumpenaggregate
- Drehstrommotor: 400 V, 50 Hz
- Schutzart IP 68
- Verstopfungsfreies Freistromlaufrad
- 10 m Anschlusskabel
- Niveauschaltung
- Pneumatische Niveauschaltung mit 10 m Steuerleitung
- Optional: Druckaufnehmer
- Optional:Lufteinperlung (Zubehör) für Messung mit Staurohr
- Geprüft gemäß DIN EN 12050‑1
- Zulässige Fördertemperatur bis 40 °C (kurzfristig bis max. 65 °C)
- Steuerung ist nicht im Lieferumfang enthalten und muss separat bestellt werden (siehe Zubehör)
Infobox
Hinweis: Die maximale Temperatur darf nur für kurze Zeit erreicht werden.

Schaltgerät ACO Multi Control Duo Professional ohne Staudruckglocke
Passend für
- Muli-Nova DDP
- Muli-Nova x.1/x.2
- Muli-Max
- Duo
- Powerlift–P/Powerlift-P/F-H
- Muli-Flex
Beschreibung
- Für Pumpen bis 5,5 kW
- Steckerfertig mit 1,5 m Anschlusskabel
- Betriebsspannung: 400 V
- Frequenz: 50/60 Hz
- Steuerspannung: 230 V/AC
- Leistungsaufnahme im Ruhebetrieb: max. 10 VA
- Temperaturbereich: ‑20 bis +60 °C
- Schutzart IP 54
- Mit Modbus RTU - Funktionalität zum Anschluss an die Gebäudeleittechnik
- CEE 16-Stecker mit Phasenwender
- Umrüstbar auf CEE 32 mit Art.Nr. 0150.79.75 (5G4 mit CEE 32 Stecker)
- Ohne Steuerleitung
- Netzunabhängiger Alarm per 9 V-Akku (85dBA, 5‑6h)
- Gewicht: 5,4 kg
- Preis/Stk. UVP zzgl. USt. 2026 [€]: 1.896,36 €
- Rabattgruppe: 12
Schaltgerät ACO Multi Control Duo Professional ohne Staudruckglocke
Passend für
- Muli-Nova DDP
- Muli-Nova x.3
Beschreibung
- Für Pumpen bis 5,5 kW
- Steckerfertig mit 1,5 m Anschlusskabel
- Betriebsspannung: 400 V
- Frequenz: 50/60 Hz
- Steuerspannung: 230 V/AC
- Leistungsaufnahme im Ruhebetrieb: max. 10 VA
- Temperaturbereich: ‑20 bis +60 °C
- Schutzart IP 54
- Mit Modbus RTU - Funktionalität zum Anschluss an die Gebäudeleittechnik
- CEE 32-Stecker mt Phasenwender
- Ohne Steuerleitung
- Netzunabhängiger Alarm per 9 V-Akku (85dBA, 5‑6h)
- Gewicht: 5,4 kg
- Preis/Stk. UVP zzgl. USt. 2026 [€]: 1.940,82 €
- Rabattgruppe: 12
Schaltgerät ACO Multi Control Duo Advanced (ohne Staudruckglocke)
Passend für
- Muli-Max
- Duo
- Powerlift–P/Powerlift-P/F-H
- Muli-Flex
- Muli-Nova DDP
- Muli-Nova x.1/x.2
Beschreibung
- Für Pumpen bis 5,5 kW
- Steckerfertig mit 1,5 m Anschlusskabel
- Betriebsspannung: 400 V
- Frequenz: 50/60 Hz
- Steuerspannung: 230 V/AC
- Leistungsaufnahme im Ruhebetrieb: max. 10 VA
- Temperaturbereich: ‑20 bis +60 °C
- Schutzart IP 54
- CEE 16-Stecker mit Phasenwender
- Umrüstbar auf CEE 32 mit Art.Nr. 0150.79.75 (5G4 mit CEE 32 Stecker)
- Ohne Steuerleitung
- Gewicht: 5,4 kg
- Preis/Stk. UVP zzgl. USt. 2026 [€]: 1.402,93 €
- Rabattgruppe: 12
Schaltgerät ACO Multi Control Duo Advanced (ohne Staudruckglocke)
Passend für
- Muli-Nova DDP
- Muli-Nova x.3
Beschreibung
- Für Pumpen bis 5,5 kW
- Steckerfertig mit 1,5 m Anschlusskabel
- Betriebsspannung: 400 V
- Frequenz: 50/60 Hz
- Steuerspannung: 230 V/AC
- Leistungsaufnahme im Ruhebetrieb: max. 10 VA
- Temperaturbereich: ‑20 bis +60 °C
- Schutzart IP 54
- CEE 32-Stecker mit Phasenwender
- Ohne Steuerleitung
- Gewicht: 5,4 kg
- Preis/Stk. UVP zzgl. USt. 2026 [€]: 1.461,04 €
- Rabattgruppe: 12
Signalanlage mit GSM-Modul
Passend für
- Alle Fettabscheider
- Fettschichtdicken-Messgerät
- Vorbehälteranlage-duo
- Verfahrenstechnische Anlagen
- Fäkalien-Rückstauautomaten Quatrix-K Typ 3F
- Sinkamat-K (Unterflur) duo
- Muli-Hebeanlagen
- Pumpstationen
- Einbausets
Beschreibung
- Parametrisierbar per App (Android & iOs)
- Netzunabhängiger Alarm per 12 V Bleigel-Akku
- Optische und Akustische Alarmmeldung
- Frei konfigurierbare Eingänge
- 6 digitale mit LED- Zustandsanzeige
- 1 analoger
- 1 Alarmausgang 12 V
- Weiterleitung der Alarms per SMS auf Mobiltelefone
- Zur Montage außerhalb des Ex-Bereiches
- Gehäuse: 192 x 150(mit Kabelverschraubung) x 100 mm (BxHxT)
- Schutzarzt: IP54
- Betriebsspannung: 230 V/AC 50/60 Hz
- Gewicht: 2 kg
- Preis/Stk. UVP zzgl. USt. 2026 [€]: 1.378,82 €
- Rabattgruppe: 12
Verlängerungskabel für Antenne GSM Modul
Passend für
- GSM - Modul
Beschreibung
- Länge inkl. Anschlüsse: ca. 15 m
- Kabel-Typ: RG58
- Anschlüsse:1 x SMA Stecker (SMA/M) und 1 x SMA Buchse (SMA/F)
- Es darf pro GSM- Modul nur max. ein Verlängerungskabel verwendet werden
- Nutzbar im Temperaturbereich: ‑20 °C bis 85 °C
- Preis/Stk. UVP zzgl. USt. 2026 [€]: 166,47 €
- Rabattgruppe: 12
Signalanlage
Passend für
- Fäkalien-Rückstauautomaten Quatrix‑K Typ 3F
- Alle Muli Abwasserhebeanlagen
- Vorbehälteranlage-duo
- Muli-Max
- Powerlift–P/Powerlift-P/F-H
- Sinkamat –K/-KD
- Sinkamat-Z
- Sinkamat-K (Unterflur)
- Duo
- LipuLift-P
Beschreibung
- Selbstaufladend
- Mit potentialfreiem Kontakt
- Optisch und akustisch
- Ohne Kontaktgeber
- Zur Montage außerhalb des Ex-Bereiches
- Abmessungen: 175 x 125 x 75 mm B x H x T
- Schutzart: IP65
- Betriebsspannung: 230 V/AC 50/60 Hz
- Steckerfertig mit Kabel: 2 m
- Gewicht: 1,4 kg
- Preis/Stk. UVP zzgl. USt. 2026 [€]: 415,40 €
- Rabattgruppe: 12
Set aus Anschluss- und Überflutungsmodul
Passend für
- Rückstauverschlüsse Triplex-K
- DN 100 – DN 150
- Rückstauverschlüsse Quatrix-K
- Alle Abwasserhebeanlagen
- Alle Abscheider
- Vorbehälteranlage-duo
Beschreibung
- Meldung einer Leckage ausgelöst durch z.B. Rohrbruch
- Für elektrisch leitende Flüssigkeiten
- Optische und akustische Alarmmeldung ca. > 85 dB
- Potentialfreier Kontakt zur Störungsweiterleitung
- Schutzart: Steuerung IP 54; Fühler: IP68
- Betriebspannung: 230 V/AC 50/60 Hz
- Steckerfertig: 1,4 m
- Überflutungsmelder mit 10 m Kabel
- Gewicht: 1,1 kg
- Preis/Stk. UVP zzgl. USt. 2026 [€]: 345,25 €
- Rabattgruppe: 12
Signalhupe
Signalhupe
Passend für
- Pumpstationen mit Schaltgerät ACO MultiControl
- Abwasserhebeanlagen mit Schaltgerät ACO Multi Control
- LipuSmart-P
- LipuLift-P
Beschreibung
- Betriebsspannung: 230 V AC
- Stromaufnahme: 30 mA
- Abmessung: ∅62x85 mm (L/B x T)
- Schutzart: IP66
- 95 dB(A)
- Gewicht: 0,3 kg
- Preis/Stk. UVP zzgl. USt. 2026 [€]: 316,76 €
- Rabattgruppe: 12
Blitzleuchte
Blitzleuchte
Halterung für Niveaumessung
Lufteinperlung
Passend für
- Muli-Max
- Powerlift–P
- Muli-Flex
Beschreibung
- Zur Erhöhung der Betriebssicherheit (bei Schwimmdeckenbildung, z.B. bei Fettabscheidern)
- Für pneumatische Niveauschaltung (Staudruckglocke)
- Kleinstkompressor
- Anschluss: 230 V
- Steckerfertig
- Mit T-Einschraubverschraubung
- Mit Rückschlagventil
- Gewicht: 0,6 kg
- Preis/Stk. UVP zzgl. USt. 2026 [€]: 443,90 €
- Rabattgruppe: 12
Druckaufnehmer
Passend für
- Schaltgerät ACO Multi-Control
- Mono und Duo
- LipuLift-P/LipuLift-PF
- Powerlift-P/F-H
- Muli-Flex
Beschreibung
- Aufnahme 4 – 20 mA
- Zur sicheren Schaltung Leitungslängen > 12 m
- 0 – 200 mbar
- Bei Einsatz in fäkalienhaltigen Abwässern ist zusätzlich die Ex-Barriere zu verwenden.
- Mit Kabel zur Installation: 20 m
- Gewicht: 2 kg
- Preis/Stk. UVP zzgl. USt. 2026 [€]: 868,06 €
- Rabattgruppe: 12
Druckaufnehmer
Passend für
- Schaltgerät ACO Multi-Control
- Mono und Duo
- LipuLift-P/LipuLift-PF
- Powerlift-P/F-H
- Muli-Flex
Beschreibung
- Aufnahme 4 – 20 mA
- Zur sicheren Schaltung Leitungslängen > 12 m
- 0 – 200 mbar
- Bei Einsatz in fäkalienhaltigen Abwässern ist zusätzlich die Ex-Barriere zu verwenden.
- Kabel zur Installation: 40 m
- Gewicht: 3,4 kg
- Preis/Stk. UVP zzgl. USt. 2026 [€]: 1.498,29 €
- Rabattgruppe: 12
Schwimmerschalter
Passend für
- Für fäkalienhaltiges sowie fäkalienfreies Abwasser
- MultiControl- Steuerungen als Schwimmerschalter
- MultiControl- Steuerungen als zusätzl. Hochalarmschwimmer
Beschreibung
- Gehäuse: PRE-ELEC PP
- Schutzart: IP68
- Schaltspannung: 4‑40 V
- Schaltstrom: 1‑100 mA
- Anschlusskabel: 10 m
- Schaltwinkel: 10°
- Schutzklasse: II 1G Ex ia IIC T6 Ga
- Preis/Stk. UVP zzgl. USt. 2026 [€]: 188,52 €
- Rabattgruppe: 12
Sicherheitsbarriere
Rundschnurring
Absperrschieber DN 80 für Druckseite
Zulauf-/Absperrschieber DN 100
Passend für
- Fettabscheider aus Polyethylen
- Stärkeabscheider aus Polyethylen
- Vorbehälteranlagen Typ 2 und 4
- LipuMobil – Typ 0,5
Beschreibung
- Aus PVC
- Beiderseits Spitzende ∅110 für muffenlose Rohrsysteme aus Gusseisen oder Kunststoff
- Gesamtmaße: 176 x 360 mm (L x H)
- Max. Druck: 0,5 bar
- Gewicht: 5,9 kg
- Preis/Stk. UVP zzgl. USt. 2026 [€]: 936,02 €
- Rabattgruppe: 12
Zulauf-/Absperrschieber DN 100
Passend für
- Abwasserhebeanlagen
- Fettabscheider aus Polyethylen
- Stärkeabscheider aus Polyethylen
- Vorbehälteranlagen Typ 2 und 4
- LipuMobil-P – Typ 0,5
Beschreibung
- Aus PVC
- Beiderseits Steckmuffe 110 mm mit Lippendichtring
- Gesamtmaße: 176 x 330 mm (L x H)
- Max. Druck: 0,5 bar
- Gewicht: 3,1 kg
- Preis/Stk. UVP zzgl. USt. 2026 [€]: 725,58 €
- Rabattgruppe: 12
Zulauf-/Absperrschieber DN 150
Passend für
- Abwasserhebeanlagen
- Fettabscheider aus Polyethylen
- Stärkeabscheider aus Polyethylen
- Vorbehälteranlagen Typ 7 bis 10
Beschreibung
- Aus PVC
- Beiderseits Steckmuffe 160 mm mit Lippendichtring
- Gesamtmaße: 226 x 510 mm (L x H)
- Max. Druck: 0,5 bar
- Gewicht: 7 kg
- Preis/Stk. UVP zzgl. USt. 2026 [€]: 1.204,55 €
- Rabattgruppe: 12
Zulauf-/Absperrschieber DN 150
Passend für
- Fettabscheider aus Polyethylen
- Stärkeabscheider aus Polyethylen
- Vorbehälteranlagen Typ 7 bis 10
Beschreibung
- Aus PVC
- Beiderseits Spitzende ∅160 für muffenlose Rohrsysteme aus Gusseisen oder Kunststoff
- Gesamtmaße: 226 x 420 mm (L x H)
- Max. Druck: 0,5 bar
- Gewicht: 10,2 kg
- Preis/Stk. UVP zzgl. USt. 2026 [€]: 1.413,89 €
- Rabattgruppe: 12
Zulauf-/Absperrschieber DN 200
Einlassdichtung DN 50
Einlassdichtung DN 70
Einlassdichtung DN 100
Einlassdichtung DN 150
Einlassdichtung DN 200
Lochkreissäge DN 150 (160 mm)
Lochkreissäge DN 100 (110 mm)
Handmembranpumpe R 1½"
Dreiwegehahn R 1½"

Schaltgerät ACO Multi Control Duo Professional ohne Staudruckglocke
Passend für
- Muli-Nova DDP
- Muli-Nova x.1/x.2
- Muli-Max
- Duo
- Powerlift–P/Powerlift-P/F-H
- Muli-Flex
Beschreibung
- Für Pumpen bis 5,5 kW
- Steckerfertig mit 1,5 m Anschlusskabel
- Betriebsspannung: 400 V
- Frequenz: 50/60 Hz
- Steuerspannung: 230 V/AC
- Leistungsaufnahme im Ruhebetrieb: max. 10 VA
- Temperaturbereich: ‑20 bis +60 °C
- Schutzart IP 54
- Mit Modbus RTU - Funktionalität zum Anschluss an die Gebäudeleittechnik
- CEE 16-Stecker mit Phasenwender
- Umrüstbar auf CEE 32 mit Art.Nr. 0150.79.75 (5G4 mit CEE 32 Stecker)
- Ohne Steuerleitung
- Netzunabhängiger Alarm per 9 V-Akku (85dBA, 5‑6h)
- Gewicht: 5,4 kg
- Preis/Stk. UVP zzgl. USt. 2026 [€]: 1.896,36 €
- Rabattgruppe: 12
Schaltgerät ACO Multi Control Duo Professional ohne Staudruckglocke
Passend für
- Muli-Nova DDP
- Muli-Nova x.3
Beschreibung
- Für Pumpen bis 5,5 kW
- Steckerfertig mit 1,5 m Anschlusskabel
- Betriebsspannung: 400 V
- Frequenz: 50/60 Hz
- Steuerspannung: 230 V/AC
- Leistungsaufnahme im Ruhebetrieb: max. 10 VA
- Temperaturbereich: ‑20 bis +60 °C
- Schutzart IP 54
- Mit Modbus RTU - Funktionalität zum Anschluss an die Gebäudeleittechnik
- CEE 32-Stecker mt Phasenwender
- Ohne Steuerleitung
- Netzunabhängiger Alarm per 9 V-Akku (85dBA, 5‑6h)
- Gewicht: 5,4 kg
- Preis/Stk. UVP zzgl. USt. 2026 [€]: 1.940,82 €
- Rabattgruppe: 12
Schaltgerät ACO Multi Control Duo Advanced (ohne Staudruckglocke)
Passend für
- Muli-Max
- Duo
- Powerlift–P/Powerlift-P/F-H
- Muli-Flex
- Muli-Nova DDP
- Muli-Nova x.1/x.2
Beschreibung
- Für Pumpen bis 5,5 kW
- Steckerfertig mit 1,5 m Anschlusskabel
- Betriebsspannung: 400 V
- Frequenz: 50/60 Hz
- Steuerspannung: 230 V/AC
- Leistungsaufnahme im Ruhebetrieb: max. 10 VA
- Temperaturbereich: ‑20 bis +60 °C
- Schutzart IP 54
- CEE 16-Stecker mit Phasenwender
- Umrüstbar auf CEE 32 mit Art.Nr. 0150.79.75 (5G4 mit CEE 32 Stecker)
- Ohne Steuerleitung
- Gewicht: 5,4 kg
- Preis/Stk. UVP zzgl. USt. 2026 [€]: 1.402,93 €
- Rabattgruppe: 12
Schaltgerät ACO Multi Control Duo Advanced (ohne Staudruckglocke)
Passend für
- Muli-Nova DDP
- Muli-Nova x.3
Beschreibung
- Für Pumpen bis 5,5 kW
- Steckerfertig mit 1,5 m Anschlusskabel
- Betriebsspannung: 400 V
- Frequenz: 50/60 Hz
- Steuerspannung: 230 V/AC
- Leistungsaufnahme im Ruhebetrieb: max. 10 VA
- Temperaturbereich: ‑20 bis +60 °C
- Schutzart IP 54
- CEE 32-Stecker mit Phasenwender
- Ohne Steuerleitung
- Gewicht: 5,4 kg
- Preis/Stk. UVP zzgl. USt. 2026 [€]: 1.461,04 €
- Rabattgruppe: 12
Signalanlage mit GSM-Modul
Passend für
- Alle Fettabscheider
- Fettschichtdicken-Messgerät
- Vorbehälteranlage-duo
- Verfahrenstechnische Anlagen
- Fäkalien-Rückstauautomaten Quatrix-K Typ 3F
- Sinkamat-K (Unterflur) duo
- Muli-Hebeanlagen
- Pumpstationen
- Einbausets
Beschreibung
- Parametrisierbar per App (Android & iOs)
- Netzunabhängiger Alarm per 12 V Bleigel-Akku
- Optische und Akustische Alarmmeldung
- Frei konfigurierbare Eingänge
- 6 digitale mit LED- Zustandsanzeige
- 1 analoger
- 1 Alarmausgang 12 V
- Weiterleitung der Alarms per SMS auf Mobiltelefone
- Zur Montage außerhalb des Ex-Bereiches
- Gehäuse: 192 x 150(mit Kabelverschraubung) x 100 mm (BxHxT)
- Schutzarzt: IP54
- Betriebsspannung: 230 V/AC 50/60 Hz
- Gewicht: 2 kg
- Preis/Stk. UVP zzgl. USt. 2026 [€]: 1.378,82 €
- Rabattgruppe: 12
Verlängerungskabel für Antenne GSM Modul
Passend für
- GSM - Modul
Beschreibung
- Länge inkl. Anschlüsse: ca. 15 m
- Kabel-Typ: RG58
- Anschlüsse:1 x SMA Stecker (SMA/M) und 1 x SMA Buchse (SMA/F)
- Es darf pro GSM- Modul nur max. ein Verlängerungskabel verwendet werden
- Nutzbar im Temperaturbereich: ‑20 °C bis 85 °C
- Preis/Stk. UVP zzgl. USt. 2026 [€]: 166,47 €
- Rabattgruppe: 12
Signalanlage
Passend für
- Fäkalien-Rückstauautomaten Quatrix‑K Typ 3F
- Alle Muli Abwasserhebeanlagen
- Vorbehälteranlage-duo
- Muli-Max
- Powerlift–P/Powerlift-P/F-H
- Sinkamat –K/-KD
- Sinkamat-Z
- Sinkamat-K (Unterflur)
- Duo
- LipuLift-P
Beschreibung
- Selbstaufladend
- Mit potentialfreiem Kontakt
- Optisch und akustisch
- Ohne Kontaktgeber
- Zur Montage außerhalb des Ex-Bereiches
- Abmessungen: 175 x 125 x 75 mm B x H x T
- Schutzart: IP65
- Betriebsspannung: 230 V/AC 50/60 Hz
- Steckerfertig mit Kabel: 2 m
- Gewicht: 1,4 kg
- Preis/Stk. UVP zzgl. USt. 2026 [€]: 415,40 €
- Rabattgruppe: 12
Set aus Anschluss- und Überflutungsmodul
Passend für
- Rückstauverschlüsse Triplex-K
- DN 100 – DN 150
- Rückstauverschlüsse Quatrix-K
- Alle Abwasserhebeanlagen
- Alle Abscheider
- Vorbehälteranlage-duo
Beschreibung
- Meldung einer Leckage ausgelöst durch z.B. Rohrbruch
- Für elektrisch leitende Flüssigkeiten
- Optische und akustische Alarmmeldung ca. > 85 dB
- Potentialfreier Kontakt zur Störungsweiterleitung
- Schutzart: Steuerung IP 54; Fühler: IP68
- Betriebspannung: 230 V/AC 50/60 Hz
- Steckerfertig: 1,4 m
- Überflutungsmelder mit 10 m Kabel
- Gewicht: 1,1 kg
- Preis/Stk. UVP zzgl. USt. 2026 [€]: 345,25 €
- Rabattgruppe: 12
Signalhupe
Signalhupe
Passend für
- Pumpstationen mit Schaltgerät ACO MultiControl
- Abwasserhebeanlagen mit Schaltgerät ACO Multi Control
- LipuSmart-P
- LipuLift-P
Beschreibung
- Betriebsspannung: 230 V AC
- Stromaufnahme: 30 mA
- Abmessung: ∅62x85 mm (L/B x T)
- Schutzart: IP66
- 95 dB(A)
- Gewicht: 0,3 kg
- Preis/Stk. UVP zzgl. USt. 2026 [€]: 316,76 €
- Rabattgruppe: 12
Blitzleuchte
Blitzleuchte
Halterung für Niveaumessung
Lufteinperlung
Passend für
- Muli-Max
- Powerlift–P
- Muli-Flex
Beschreibung
- Zur Erhöhung der Betriebssicherheit (bei Schwimmdeckenbildung, z.B. bei Fettabscheidern)
- Für pneumatische Niveauschaltung (Staudruckglocke)
- Kleinstkompressor
- Anschluss: 230 V
- Steckerfertig
- Mit T-Einschraubverschraubung
- Mit Rückschlagventil
- Gewicht: 0,6 kg
- Preis/Stk. UVP zzgl. USt. 2026 [€]: 443,90 €
- Rabattgruppe: 12
Druckaufnehmer
Passend für
- Schaltgerät ACO Multi-Control
- Mono und Duo
- LipuLift-P/LipuLift-PF
- Powerlift-P/F-H
- Muli-Flex
Beschreibung
- Aufnahme 4 – 20 mA
- Zur sicheren Schaltung Leitungslängen > 12 m
- 0 – 200 mbar
- Bei Einsatz in fäkalienhaltigen Abwässern ist zusätzlich die Ex-Barriere zu verwenden.
- Mit Kabel zur Installation: 20 m
- Gewicht: 2 kg
- Preis/Stk. UVP zzgl. USt. 2026 [€]: 868,06 €
- Rabattgruppe: 12
Druckaufnehmer
Passend für
- Schaltgerät ACO Multi-Control
- Mono und Duo
- LipuLift-P/LipuLift-PF
- Powerlift-P/F-H
- Muli-Flex
Beschreibung
- Aufnahme 4 – 20 mA
- Zur sicheren Schaltung Leitungslängen > 12 m
- 0 – 200 mbar
- Bei Einsatz in fäkalienhaltigen Abwässern ist zusätzlich die Ex-Barriere zu verwenden.
- Kabel zur Installation: 40 m
- Gewicht: 3,4 kg
- Preis/Stk. UVP zzgl. USt. 2026 [€]: 1.498,29 €
- Rabattgruppe: 12
Schwimmerschalter
Passend für
- Für fäkalienhaltiges sowie fäkalienfreies Abwasser
- MultiControl- Steuerungen als Schwimmerschalter
- MultiControl- Steuerungen als zusätzl. Hochalarmschwimmer
Beschreibung
- Gehäuse: PRE-ELEC PP
- Schutzart: IP68
- Schaltspannung: 4‑40 V
- Schaltstrom: 1‑100 mA
- Anschlusskabel: 10 m
- Schaltwinkel: 10°
- Schutzklasse: II 1G Ex ia IIC T6 Ga
- Preis/Stk. UVP zzgl. USt. 2026 [€]: 188,52 €
- Rabattgruppe: 12
Sicherheitsbarriere
Rundschnurring
Absperrschieber DN 80 für Druckseite
Zulauf-/Absperrschieber DN 100
Passend für
- Fettabscheider aus Polyethylen
- Stärkeabscheider aus Polyethylen
- Vorbehälteranlagen Typ 2 und 4
- LipuMobil – Typ 0,5
Beschreibung
- Aus PVC
- Beiderseits Spitzende ∅110 für muffenlose Rohrsysteme aus Gusseisen oder Kunststoff
- Gesamtmaße: 176 x 360 mm (L x H)
- Max. Druck: 0,5 bar
- Gewicht: 5,9 kg
- Preis/Stk. UVP zzgl. USt. 2026 [€]: 936,02 €
- Rabattgruppe: 12
Zulauf-/Absperrschieber DN 100
Passend für
- Abwasserhebeanlagen
- Fettabscheider aus Polyethylen
- Stärkeabscheider aus Polyethylen
- Vorbehälteranlagen Typ 2 und 4
- LipuMobil-P – Typ 0,5
Beschreibung
- Aus PVC
- Beiderseits Steckmuffe 110 mm mit Lippendichtring
- Gesamtmaße: 176 x 330 mm (L x H)
- Max. Druck: 0,5 bar
- Gewicht: 3,1 kg
- Preis/Stk. UVP zzgl. USt. 2026 [€]: 725,58 €
- Rabattgruppe: 12
Zulauf-/Absperrschieber DN 150
Passend für
- Abwasserhebeanlagen
- Fettabscheider aus Polyethylen
- Stärkeabscheider aus Polyethylen
- Vorbehälteranlagen Typ 7 bis 10
Beschreibung
- Aus PVC
- Beiderseits Steckmuffe 160 mm mit Lippendichtring
- Gesamtmaße: 226 x 510 mm (L x H)
- Max. Druck: 0,5 bar
- Gewicht: 7 kg
- Preis/Stk. UVP zzgl. USt. 2026 [€]: 1.204,55 €
- Rabattgruppe: 12
Zulauf-/Absperrschieber DN 150
Passend für
- Fettabscheider aus Polyethylen
- Stärkeabscheider aus Polyethylen
- Vorbehälteranlagen Typ 7 bis 10
Beschreibung
- Aus PVC
- Beiderseits Spitzende ∅160 für muffenlose Rohrsysteme aus Gusseisen oder Kunststoff
- Gesamtmaße: 226 x 420 mm (L x H)
- Max. Druck: 0,5 bar
- Gewicht: 10,2 kg
- Preis/Stk. UVP zzgl. USt. 2026 [€]: 1.413,89 €
- Rabattgruppe: 12
Zulauf-/Absperrschieber DN 200
Einlassdichtung DN 50
Einlassdichtung DN 70
Einlassdichtung DN 100
Einlassdichtung DN 150
Einlassdichtung DN 200
Lochkreissäge DN 150 (160 mm)
Lochkreissäge DN 100 (110 mm)
Handmembranpumpe R 1½"
Dreiwegehahn R 1½"
Besonderheiten der neuen Doppelpumpen-Hebeanlage ACO Muli-Nova
Kraftpaket für Gewerbeobjekte und Industrie
TGA-Planer stehen vor der Herausforderung, Abwasserhebeanlagen zu finden, die den hohen Anforderungen in gewerblichen Immobilien wie Gastronomiebetrieben, Bürogebäuden und Einkaufszentren gerecht werden, die viele Untergeschosse aufweisen. Um Abwasser effizient abzuleiten, müssen häufig große geodätische Höhen und weite Distanzen zur Kanalisation überbrückt werden. Dafür ist eine leistungsstarke Abwasserhebeanlage erforderlich, die genügend Druck erzeugt und mit einer Rückstauschleife den Rückstau des Abwassers verhindert.
Die neue Hebeanlage ACO Muli-Nova DDP mit Doppelpumpen meistert diese Anforderungen und ist damit die ideale Lösung für anspruchsvolle Herausforderungen in der TGA-Planung.
Doppelpumpen-Hebeanlage für große Förderhöhen
Die ACO Muli-Nova DDP ist mit zwei leistungsstarken Vortex-Pumpen ausgestattet, die eine Förderhöhe von bis zu 30 Metern und eine Fördermenge von bis zu 23,5 Litern pro Sekunde erreichen – und dabei nahezu verstopfungsfrei arbeiten. Sie ist ideal zum Heben von Abwasser, das unterhalb der Rückstauebene anfällt oder zum Einsatz hinter einem Fettabscheider. Die Anlage kann sowohl fäkalienhaltiges als auch fäkalienfreies Abwasser heben.
Dank der robusten Materialien aus Edelstahl, Polyethylen und Polyurethan ist die Anlage zudem korrosionsbeständig und widerstandsfähig gegen aggressive Medien wie Wasser aus Enthärtungsanlagen und chlorhaltiges Abwasser. Für die optimale Strömung, sichere Abdichtung der Druckleitung und leise Funktionsweise sorgt der patentierte Kombi-Rückflussverhinderer.
Die Pumpen können mit zwei unterschiedlichen Behältervoluminas von 430 Litern oder 550 Litern wahlweise kombiniert werden. Je nach Anforderungen ist die Doppelpumpe in drei Leistungsstufen von 1,5, 3,0 und 5,5 kW erhältlich. Die separate Pumpeneinheit und das robuste Pumpenspiralgehäuse garantieren eine lange Lebensdauer und Zuverlässigkeit der Anlage.
Hebeanlage für Grau- und Schwarzwasser
Zwei Werkstoffe
Die Muli-Nova Serie ist je nach Anwendungsfall sowohl aus hochwertigem Kunststoff als auch aus robustem Edelstahl erhältlich.
Topographische Gegebenheiten
Wenn an den Ablaufstellen kein natürliches Gefälle zum Kanal vorliegt, z. B. Tiefgaragen oder tiefergelegene Geschosse, so hebt die Muli-Nova mühelos Abwasser über die Rückstauebene in den Kanal.
Schutz vor Rückstau
Bei starkem Regen oder Überflutungen kann es zu einem Rückstau aus dem öffentlichen Kanal kommen. Eine Hebeanlage stellt sicher, dass das Abwasser weiterhin abgeführt wird und schützt so vor Überschwemmungen und Schäden im Gebäude.
Flexibilität bei der Gebäudeplanung
Mit der Muli-Nova erhalten Sie eine Anlage, die sich flexibel aufstellen lässt. Die Wartung kann komplett von oben durchgeführt werden, somit ist der Einbau in einem Schacht kein Hindernis.
Flexibel bei den Anschlüssen (Muli-Nova aus Kunststoff)
Durch die gekennzeichneten Bohrflächen kann der Zulauf auf der gewünschten Höhe eingebracht werden. Dies geschieht per mitgelieferter Dichtung und Lochsäge.
Effizienz und Umweltschutz
Moderne ACO Hebeanlagen sind energieeffizient und werden mit intelligenten Steuerungen ausgestattet, die den Betrieb optimieren und Energiekosten senken.
Hohe Beständigkeit
Geeignet für salzhaltiges Rückspülwasser aus Enthärtungsanlagen sowie chlorhaltiges Abwasser aus Hallenbädern (0,3 -1,0 mg/l)
Besonderheiten der Doppelpumpen-Hebeanlage
Die Besonderheit der ACO Muli-Nova liegt in der innovativen Technologie, die leistungsstarke Pumpentechnik und flexible Anschlussmöglichkeiten in einem kompakten Design vereint.
Mit ACO Muli-Nova heben wir nicht nur Abwasser, sondern auch den Standard – kompakt, kraftvoll, zukunftsweisend und effizient.
Leistungsmerkmale der Abwasserhebeanlage ACO Muli-Nova
- Optimiert für den Einsatz hinter Fettabscheidern: sicherer Betrieb durch ausgewählte Werkstoffe sowie Staudruckmessung mit Lufteinperlung (optional)
- Maximale Leistung: für alle Einsatzgebiete durch zwei Vortex-Pumpen
- Wählbare Zuläufe: Flexibilität beim Anschluss der Zuläufe durch markierte Bohrflächen
- Zwei Behältervolumina: für jede Anwendung den passenden Behälter
- Langlebigkeit: beständige Materialien und robuste Konstruktion garantieren lange Lebensdauer und Zuverlässigkeit
| Leistungsmerkmal | Muli-Nova DDP 1.x | Muli-Nova DDP 2.x |
|---|---|---|
| Hinter Fettabscheidern | bis Nenngröße 22,5 | |
| Maximale Förderhöhe | 30 m | |
| Maximale Fördermenge | 23,5 l/s | |
| Pumpenleistung | 3 Leistungsstufen verfügbar: 1,5/ 3,0/ 5,5 kW | |
| Gesamtvolumen | 430 l | 550 l |
Steuerung ACO MultiControl mit ModBus
Die innovative Steuerung für Hebeanlagen ACO MultiControl Professional mit ModBus-Funktionalität ist perfekt für die Integration in die Gebäudeleittechnik geeignet. Es werden alle Mess- und Einstellwerte per ModBus übertragen, wobei sich sowohl Daten abfragen sowie auch Einstellwerte aus der Ferne ändern lassen.
Der Füllstand wird über Staudruckmessung oder wahlweise Drucksensor erfasst. Die Staudruckmessung, die durch eine Lufteinperlung unterstützt wird, garantiert vor allem beim Einsatz nach Fettabscheidern eine störungsfreie Niveaumessung. Die Steuerung bietet ein LCD-Textdisplay und eine einfache Menüführung. Neben Stromaufnahme und Füllstandsüberwachung wird unter anderem auch die maximale Laufzeit überwacht. Features wie netzunabhängiger Alarm sowie potentialfreier Kontakt sind natürlich standardmäßig im Lieferumfang.






































