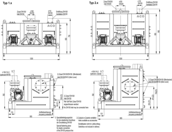
Abwasserhebeanlage Muli-Nova-S DDP
Produktvorteile
- Geringe Brandlast, höhere Temperaturbeständigkeit
- Geprüft gemäß DIN EN 12050‑1
- Förderhöhen bis zu 30 m möglich
- 2 Behältergrößen wählbar (430/550 l )
- Leicht zu wartender Rückflussverhinderer (patentiert)
Produktinformationen
- Anwendungsbereiche
- Mehrfamilienhäuser
- Bürogebäude
- Industriegebäude
- Hinter Abscheidern bis NS 20 - in Verbindung mit Lufteinperlung
- Sammelbehälter aus Edelstahl
- Grundablass/Anschluss Handmembranpumpe R 1½"
- Revisionsöffnung zur einfachen Wartung
- Befestigungsset zur auftriebssicheren Verankerung
- DDP 1.x:
- Horizontale Zulaufstutzen 3x DN 100/DN 150, 1x DN 100, jeweils per Blinddeckel verschlossen
- Vertikale Zulaufstutzen: 1x DN 150, 1x DN 100 (Entlüftung)
- DDP 2.x:
- Horizontale Zulaufstutzen 4x DN 100/DN 150, jeweils per Blinddeckel verschlossen
- Vertikale Zulaufstutzen: 1x DN 200, 1x DN 100 (Entlüftung)
- Anschluss Druckleitung
- Patentierter Klappen- Rückflussverhinderer mit Anlüftschraube
- Ablasshahn für erleichtertes Entleeren
- Spezial-Befestigungsstück DN 80 zum elastischen Anschluss der Druckleitung mit 108 – 114,3 mm Rohraußendurchmesser (optional 88 – 93 mm)
- Anschlussflansch für Absperrschieber DN 80 PN 16
- 2 Pumpenaggregate
- Drehstrommotor: 400 V, 50 Hz
- Schutzart IP 68
- Verstopfungsfreies Freistromlaufrad
- 10 m Anschlusskabel
- Niveauschaltung
- Pneumatische Niveauschaltung mit 10 m Steuerleitung
- Optional: Druckaufnehmer
- Optional: Lufteinperlung (Zubehör) für Messung mit Staurohr
- Geprüft gemäß DIN EN 12050‑1
- Zulässige Fördertemperatur bis 40 °C (kurzfristig bis max. 75 °C)
- Steuerung ist nicht im Lieferumfang enthalten und muss separat bestellt werden (siehe Zubehör)
Infobox
Hinweis: Die maximale Temperatur darf nur für kurze Zeit erreicht werden.

Schaltgerät ACO Multi Control Duo Professional ohne Staudruckglocke
Passend für
- Muli-Nova DDP
- Muli-Nova x.1/x.2
- Muli-Max
- Duo
- Powerlift–P/Powerlift-P/F-H
- Muli-Flex
Beschreibung
- Für Pumpen bis 5,5 kW
- Steckerfertig mit 1,5 m Anschlusskabel
- Betriebsspannung: 400 V
- Frequenz: 50/60 Hz
- Steuerspannung: 230 V/AC
- Leistungsaufnahme im Ruhebetrieb: max. 10 VA
- Temperaturbereich: ‑20 bis +60 °C
- Schutzart IP 54
- Mit Modbus RTU - Funktionalität zum Anschluss an die Gebäudeleittechnik
- CEE 16-Stecker mit Phasenwender
- Umrüstbar auf CEE 32 mit Art.Nr. 0150.79.75 (5G4 mit CEE 32 Stecker)
- Ohne Steuerleitung
- Netzunabhängiger Alarm per 9 V-Akku (85dBA, 5‑6h)
- Gewicht: 5,4 kg
- Preis/Stk. UVP zzgl. USt. 2025 [€]: 1.896,36 €
- Rabattgruppe: 12
Schaltgerät ACO Multi Control Duo Professional ohne Staudruckglocke
Passend für
- Muli-Nova DDP
- Muli-Nova x.3
Beschreibung
- Für Pumpen bis 5,5 kW
- Steckerfertig mit 1,5 m Anschlusskabel
- Betriebsspannung: 400 V
- Frequenz: 50/60 Hz
- Steuerspannung: 230 V/AC
- Leistungsaufnahme im Ruhebetrieb: max. 10 VA
- Temperaturbereich: ‑20 bis +60 °C
- Schutzart IP 54
- Mit Modbus RTU - Funktionalität zum Anschluss an die Gebäudeleittechnik
- CEE 32-Stecker mt Phasenwender
- Ohne Steuerleitung
- Netzunabhängiger Alarm per 9 V-Akku (85dBA, 5‑6h)
- Gewicht: 5,4 kg
- Preis/Stk. UVP zzgl. USt. 2025 [€]: 1.940,82 €
- Rabattgruppe: 12
Schaltgerät ACO Multi Control Duo Advanced (ohne Staudruckglocke)
Passend für
- Muli-Max
- Duo
- Powerlift–P/Powerlift-P/F-H
- Muli-Flex
- Muli-Nova DDP
- Muli-Nova x.1/x.2
Beschreibung
- Für Pumpen bis 5,5 kW
- Steckerfertig mit 1,5 m Anschlusskabel
- Betriebsspannung: 400 V
- Frequenz: 50/60 Hz
- Steuerspannung: 230 V/AC
- Leistungsaufnahme im Ruhebetrieb: max. 10 VA
- Temperaturbereich: ‑20 bis +60 °C
- Schutzart IP 54
- CEE 16-Stecker mit Phasenwender
- Umrüstbar auf CEE 32 mit Art.Nr. 0150.79.75 (5G4 mit CEE 32 Stecker)
- Ohne Steuerleitung
- Gewicht: 5,4 kg
- Preis/Stk. UVP zzgl. USt. 2025 [€]: 1.402,93 €
- Rabattgruppe: 12
Schaltgerät ACO Multi Control Duo Advanced (ohne Staudruckglocke)
Passend für
- Muli-Nova DDP
- Muli-Nova x.3
Beschreibung
- Für Pumpen bis 5,5 kW
- Steckerfertig mit 1,5 m Anschlusskabel
- Betriebsspannung: 400 V
- Frequenz: 50/60 Hz
- Steuerspannung: 230 V/AC
- Leistungsaufnahme im Ruhebetrieb: max. 10 VA
- Temperaturbereich: ‑20 bis +60 °C
- Schutzart IP 54
- CEE 32-Stecker mit Phasenwender
- Ohne Steuerleitung
- Gewicht: 5,4 kg
- Preis/Stk. UVP zzgl. USt. 2025 [€]: 1.461,04 €
- Rabattgruppe: 12
Zulauf-/Absperrschieber DN 150
Passend für
- Abwasserhebeanlagen
- Fettabscheider aus Polyethylen
- Stärkeabscheider aus Polyethylen
- Vorbehälteranlagen Typ 7 bis 10
Beschreibung
- Aus PVC
- Beiderseits Steckmuffe 160 mm mit Lippendichtring
- Gesamtmaße: 226 x 510 mm (L x H)
- Max. Druck: 0,5 bar
- Gewicht: 7 kg
- Preis/Stk. UVP zzgl. USt. 2025 [€]: 1.204,55 €
- Rabattgruppe: 12
Lufteinperlung
Passend für
- Muli-Max
- Powerlift–P
- Muli-Flex
Beschreibung
- Zur Erhöhung der Betriebssicherheit (bei Schwimmdeckenbildung, z.B. bei Fettabscheidern)
- Für pneumatische Niveauschaltung (Staudruckglocke)
- Kleinstkompressor
- Anschluss: 230 V
- Steckerfertig
- Mit T-Einschraubverschraubung
- Mit Rückschlagventil
- Gewicht: 0,6 kg
- Preis/Stk. UVP zzgl. USt. 2025 [€]: 443,90 €
- Rabattgruppe: 12
Druckaufnehmer
Passend für
- Schaltgerät ACO Multi-Control
- Mono und Duo
- LipuLift-P/LipuLift-PF
- Powerlift-P/F-H
- Muli-Flex
Beschreibung
- Aufnahme 4 – 20 mA
- Zur sicheren Schaltung Leitungslängen > 12 m
- 0 – 200 mbar
- Bei Einsatz in fäkalienhaltigen Abwässern ist zusätzlich die Ex-Barriere zu verwenden.
- Mit Kabel zur Installation: 20 m
- Gewicht: 2 kg
- Preis/Stk. UVP zzgl. USt. 2025 [€]: 868,06 €
- Rabattgruppe: 12
Druckaufnehmer
Passend für
- Schaltgerät ACO Multi-Control
- Mono und Duo
- LipuLift-P/LipuLift-PF
- Powerlift-P/F-H
- Muli-Flex
Beschreibung
- Aufnahme 4 – 20 mA
- Zur sicheren Schaltung Leitungslängen > 12 m
- 0 – 200 mbar
- Bei Einsatz in fäkalienhaltigen Abwässern ist zusätzlich die Ex-Barriere zu verwenden.
- Kabel zur Installation: 40 m
- Gewicht: 3,4 kg
- Preis/Stk. UVP zzgl. USt. 2025 [€]: 1.498,29 €
- Rabattgruppe: 12
Sicherheitsbarriere
Signalanlage mit GSM-Modul
Passend für
- Alle Fettabscheider
- Fettschichtdicken-Messgerät
- Vorbehälteranlage-duo
- Verfahrenstechnische Anlagen
- Fäkalien-Rückstauautomaten Quatrix-K Typ 3F
- Sinkamat-K (Unterflur) duo
- Muli-Hebeanlagen
- Pumpstationen
- Einbausets
Beschreibung
- Parametrisierbar per App (Android & iOs)
- Netzunabhängiger Alarm per 12 V Bleigel-Akku
- Optische und Akustische Alarmmeldung
- Frei konfigurierbare Eingänge
- 6 digitale mit LED- Zustandsanzeige
- 1 analoger
- 1 Alarmausgang 12 V
- Weiterleitung der Alarms per SMS auf Mobiltelefone
- Zur Montage außerhalb des Ex-Bereiches
- Gehäuse: 192 x 150(mit Kabelverschraubung) x 100 mm (BxHxT)
- Schutzarzt: IP54
- Betriebsspannung: 230 V/AC 50/60 Hz
- Gewicht: 2 kg
- Preis/Stk. UVP zzgl. USt. 2025 [€]: 1.378,82 €
- Rabattgruppe: 12
Zulauf-/Absperrschieber DN 150
Passend für
- Fettabscheider aus Polyethylen
- Stärkeabscheider aus Polyethylen
- Vorbehälteranlagen Typ 7 bis 10
Beschreibung
- Aus PVC
- Beiderseits Spitzende ∅160 für muffenlose Rohrsysteme aus Gusseisen oder Kunststoff
- Gesamtmaße: 226 x 420 mm (L x H)
- Max. Druck: 0,5 bar
- Gewicht: 10,2 kg
- Preis/Stk. UVP zzgl. USt. 2025 [€]: 1.413,89 €
- Rabattgruppe: 12
Schwimmerschalter
Passend für
- Für fäkalienhaltiges sowie fäkalienfreies Abwasser
- MultiControl- Steuerungen als Schwimmerschalter
- MultiControl- Steuerungen als zusätzl. Hochalarmschwimmer
Beschreibung
- Gehäuse: PRE-ELEC PP
- Schutzart: IP68
- Schaltspannung: 4‑40 V
- Schaltstrom: 1‑100 mA
- Anschlusskabel: 10 m
- Schaltwinkel: 10°
- Schutzklasse: II 1G Ex ia IIC T6 Ga
- Preis/Stk. UVP zzgl. USt. 2025 [€]: 188,52 €
- Rabattgruppe: 12
Verlängerungskabel für Antenne GSM Modul
Passend für
- GSM - Modul
Beschreibung
- Länge inkl. Anschlüsse: ca. 15 m
- Kabel-Typ: RG58
- Anschlüsse:1 x SMA Stecker (SMA/M) und 1 x SMA Buchse (SMA/F)
- Es darf pro GSM- Modul nur max. ein Verlängerungskabel verwendet werden
- Nutzbar im Temperaturbereich: ‑20 °C bis 85 °C
- Preis/Stk. UVP zzgl. USt. 2025 [€]: 166,47 €
- Rabattgruppe: 12
Signalanlage
Passend für
- Fäkalien-Rückstauautomaten Quatrix‑K Typ 3F
- Alle Muli Abwasserhebeanlagen
- Vorbehälteranlage-duo
- Muli-Max
- Powerlift–P/Powerlift-P/F-H
- Sinkamat –K/-KD
- Sinkamat-Z
- Sinkamat-K (Unterflur)
- Duo
- LipuLift-P
Beschreibung
- Selbstaufladend
- Mit potentialfreiem Kontakt
- Optisch und akustisch
- Ohne Kontaktgeber
- Zur Montage außerhalb des Ex-Bereiches
- Abmessungen: 175 x 125 x 75 mm B x H x T
- Schutzart: IP65
- Betriebsspannung: 230 V/AC 50/60 Hz
- Steckerfertig mit Kabel: 2 m
- Gewicht: 1,4 kg
- Preis/Stk. UVP zzgl. USt. 2025 [€]: 415,40 €
- Rabattgruppe: 12
Set aus Anschluss- und Überflutungsmodul
Passend für
- Rückstauverschlüsse Triplex-K
- DN 100 – DN 150
- Rückstauverschlüsse Quatrix-K
- Alle Abwasserhebeanlagen
- Alle Abscheider
- Vorbehälteranlage-duo
Beschreibung
- Meldung einer Leckage ausgelöst durch z.B. Rohrbruch
- Für elektrisch leitende Flüssigkeiten
- Optische und akustische Alarmmeldung ca. > 85 dB
- Potentialfreier Kontakt zur Störungsweiterleitung
- Schutzart: Steuerung IP 54; Fühler: IP68
- Betriebspannung: 230 V/AC 50/60 Hz
- Steckerfertig: 1,4 m
- Überflutungsmelder mit 10 m Kabel
- Gewicht: 1,1 kg
- Preis/Stk. UVP zzgl. USt. 2025 [€]: 345,25 €
- Rabattgruppe: 12
Rundschnurring
Signalhupe
Signalhupe
Passend für
- Pumpstationen mit Schaltgerät ACO MultiControl
- Abwasserhebeanlagen mit Schaltgerät ACO Multi Control
- LipuSmart-P
- LipuLift-P
Beschreibung
- Betriebsspannung: 230 V AC
- Stromaufnahme: 30 mA
- Abmessung: ∅62x85 mm (L/B x T)
- Schutzart: IP66
- 95 dB(A)
- Gewicht: 0,3 kg
- Preis/Stk. UVP zzgl. USt. 2025 [€]: 316,76 €
- Rabattgruppe: 12
Blitzleuchte
Blitzleuchte
Zulauf-/Absperrschieber DN 100
Passend für
- Fettabscheider aus Polyethylen
- Stärkeabscheider aus Polyethylen
- Vorbehälteranlagen Typ 2 und 4
- LipuMobil – Typ 0,5
Beschreibung
- Aus PVC
- Beiderseits Spitzende ∅110 für muffenlose Rohrsysteme aus Gusseisen oder Kunststoff
- Gesamtmaße: 176 x 360 mm (L x H)
- Max. Druck: 0,5 bar
- Gewicht: 5,9 kg
- Preis/Stk. UVP zzgl. USt. 2025 [€]: 936,02 €
- Rabattgruppe: 12
Zulauf-/Absperrschieber DN 100
Passend für
- Abwasserhebeanlagen
- Fettabscheider aus Polyethylen
- Stärkeabscheider aus Polyethylen
- Vorbehälteranlagen Typ 2 und 4
- LipuMobil-P – Typ 0,5
Beschreibung
- Aus PVC
- Beiderseits Steckmuffe 110 mm mit Lippendichtring
- Gesamtmaße: 176 x 330 mm (L x H)
- Max. Druck: 0,5 bar
- Gewicht: 3,1 kg
- Preis/Stk. UVP zzgl. USt. 2025 [€]: 725,58 €
- Rabattgruppe: 12
Zulauf-/Absperrschieber DN 200
Absperrschieber DN 80 für Druckseite
Handmembranpumpe R 1½"
Dreiwegehahn R 1½"

Schaltgerät ACO Multi Control Duo Professional ohne Staudruckglocke
Passend für
- Muli-Nova DDP
- Muli-Nova x.1/x.2
- Muli-Max
- Duo
- Powerlift–P/Powerlift-P/F-H
- Muli-Flex
Beschreibung
- Für Pumpen bis 5,5 kW
- Steckerfertig mit 1,5 m Anschlusskabel
- Betriebsspannung: 400 V
- Frequenz: 50/60 Hz
- Steuerspannung: 230 V/AC
- Leistungsaufnahme im Ruhebetrieb: max. 10 VA
- Temperaturbereich: ‑20 bis +60 °C
- Schutzart IP 54
- Mit Modbus RTU - Funktionalität zum Anschluss an die Gebäudeleittechnik
- CEE 16-Stecker mit Phasenwender
- Umrüstbar auf CEE 32 mit Art.Nr. 0150.79.75 (5G4 mit CEE 32 Stecker)
- Ohne Steuerleitung
- Netzunabhängiger Alarm per 9 V-Akku (85dBA, 5‑6h)
- Gewicht: 5,4 kg
- Preis/Stk. UVP zzgl. USt. 2025 [€]: 1.896,36 €
- Rabattgruppe: 12
Schaltgerät ACO Multi Control Duo Professional ohne Staudruckglocke
Passend für
- Muli-Nova DDP
- Muli-Nova x.3
Beschreibung
- Für Pumpen bis 5,5 kW
- Steckerfertig mit 1,5 m Anschlusskabel
- Betriebsspannung: 400 V
- Frequenz: 50/60 Hz
- Steuerspannung: 230 V/AC
- Leistungsaufnahme im Ruhebetrieb: max. 10 VA
- Temperaturbereich: ‑20 bis +60 °C
- Schutzart IP 54
- Mit Modbus RTU - Funktionalität zum Anschluss an die Gebäudeleittechnik
- CEE 32-Stecker mt Phasenwender
- Ohne Steuerleitung
- Netzunabhängiger Alarm per 9 V-Akku (85dBA, 5‑6h)
- Gewicht: 5,4 kg
- Preis/Stk. UVP zzgl. USt. 2025 [€]: 1.940,82 €
- Rabattgruppe: 12
Schaltgerät ACO Multi Control Duo Advanced (ohne Staudruckglocke)
Passend für
- Muli-Max
- Duo
- Powerlift–P/Powerlift-P/F-H
- Muli-Flex
- Muli-Nova DDP
- Muli-Nova x.1/x.2
Beschreibung
- Für Pumpen bis 5,5 kW
- Steckerfertig mit 1,5 m Anschlusskabel
- Betriebsspannung: 400 V
- Frequenz: 50/60 Hz
- Steuerspannung: 230 V/AC
- Leistungsaufnahme im Ruhebetrieb: max. 10 VA
- Temperaturbereich: ‑20 bis +60 °C
- Schutzart IP 54
- CEE 16-Stecker mit Phasenwender
- Umrüstbar auf CEE 32 mit Art.Nr. 0150.79.75 (5G4 mit CEE 32 Stecker)
- Ohne Steuerleitung
- Gewicht: 5,4 kg
- Preis/Stk. UVP zzgl. USt. 2025 [€]: 1.402,93 €
- Rabattgruppe: 12
Schaltgerät ACO Multi Control Duo Advanced (ohne Staudruckglocke)
Passend für
- Muli-Nova DDP
- Muli-Nova x.3
Beschreibung
- Für Pumpen bis 5,5 kW
- Steckerfertig mit 1,5 m Anschlusskabel
- Betriebsspannung: 400 V
- Frequenz: 50/60 Hz
- Steuerspannung: 230 V/AC
- Leistungsaufnahme im Ruhebetrieb: max. 10 VA
- Temperaturbereich: ‑20 bis +60 °C
- Schutzart IP 54
- CEE 32-Stecker mit Phasenwender
- Ohne Steuerleitung
- Gewicht: 5,4 kg
- Preis/Stk. UVP zzgl. USt. 2025 [€]: 1.461,04 €
- Rabattgruppe: 12
Zulauf-/Absperrschieber DN 150
Passend für
- Abwasserhebeanlagen
- Fettabscheider aus Polyethylen
- Stärkeabscheider aus Polyethylen
- Vorbehälteranlagen Typ 7 bis 10
Beschreibung
- Aus PVC
- Beiderseits Steckmuffe 160 mm mit Lippendichtring
- Gesamtmaße: 226 x 510 mm (L x H)
- Max. Druck: 0,5 bar
- Gewicht: 7 kg
- Preis/Stk. UVP zzgl. USt. 2025 [€]: 1.204,55 €
- Rabattgruppe: 12
Lufteinperlung
Passend für
- Muli-Max
- Powerlift–P
- Muli-Flex
Beschreibung
- Zur Erhöhung der Betriebssicherheit (bei Schwimmdeckenbildung, z.B. bei Fettabscheidern)
- Für pneumatische Niveauschaltung (Staudruckglocke)
- Kleinstkompressor
- Anschluss: 230 V
- Steckerfertig
- Mit T-Einschraubverschraubung
- Mit Rückschlagventil
- Gewicht: 0,6 kg
- Preis/Stk. UVP zzgl. USt. 2025 [€]: 443,90 €
- Rabattgruppe: 12
Druckaufnehmer
Passend für
- Schaltgerät ACO Multi-Control
- Mono und Duo
- LipuLift-P/LipuLift-PF
- Powerlift-P/F-H
- Muli-Flex
Beschreibung
- Aufnahme 4 – 20 mA
- Zur sicheren Schaltung Leitungslängen > 12 m
- 0 – 200 mbar
- Bei Einsatz in fäkalienhaltigen Abwässern ist zusätzlich die Ex-Barriere zu verwenden.
- Mit Kabel zur Installation: 20 m
- Gewicht: 2 kg
- Preis/Stk. UVP zzgl. USt. 2025 [€]: 868,06 €
- Rabattgruppe: 12
Druckaufnehmer
Passend für
- Schaltgerät ACO Multi-Control
- Mono und Duo
- LipuLift-P/LipuLift-PF
- Powerlift-P/F-H
- Muli-Flex
Beschreibung
- Aufnahme 4 – 20 mA
- Zur sicheren Schaltung Leitungslängen > 12 m
- 0 – 200 mbar
- Bei Einsatz in fäkalienhaltigen Abwässern ist zusätzlich die Ex-Barriere zu verwenden.
- Kabel zur Installation: 40 m
- Gewicht: 3,4 kg
- Preis/Stk. UVP zzgl. USt. 2025 [€]: 1.498,29 €
- Rabattgruppe: 12
Sicherheitsbarriere
Signalanlage mit GSM-Modul
Passend für
- Alle Fettabscheider
- Fettschichtdicken-Messgerät
- Vorbehälteranlage-duo
- Verfahrenstechnische Anlagen
- Fäkalien-Rückstauautomaten Quatrix-K Typ 3F
- Sinkamat-K (Unterflur) duo
- Muli-Hebeanlagen
- Pumpstationen
- Einbausets
Beschreibung
- Parametrisierbar per App (Android & iOs)
- Netzunabhängiger Alarm per 12 V Bleigel-Akku
- Optische und Akustische Alarmmeldung
- Frei konfigurierbare Eingänge
- 6 digitale mit LED- Zustandsanzeige
- 1 analoger
- 1 Alarmausgang 12 V
- Weiterleitung der Alarms per SMS auf Mobiltelefone
- Zur Montage außerhalb des Ex-Bereiches
- Gehäuse: 192 x 150(mit Kabelverschraubung) x 100 mm (BxHxT)
- Schutzarzt: IP54
- Betriebsspannung: 230 V/AC 50/60 Hz
- Gewicht: 2 kg
- Preis/Stk. UVP zzgl. USt. 2025 [€]: 1.378,82 €
- Rabattgruppe: 12
Zulauf-/Absperrschieber DN 150
Passend für
- Fettabscheider aus Polyethylen
- Stärkeabscheider aus Polyethylen
- Vorbehälteranlagen Typ 7 bis 10
Beschreibung
- Aus PVC
- Beiderseits Spitzende ∅160 für muffenlose Rohrsysteme aus Gusseisen oder Kunststoff
- Gesamtmaße: 226 x 420 mm (L x H)
- Max. Druck: 0,5 bar
- Gewicht: 10,2 kg
- Preis/Stk. UVP zzgl. USt. 2025 [€]: 1.413,89 €
- Rabattgruppe: 12
Schwimmerschalter
Passend für
- Für fäkalienhaltiges sowie fäkalienfreies Abwasser
- MultiControl- Steuerungen als Schwimmerschalter
- MultiControl- Steuerungen als zusätzl. Hochalarmschwimmer
Beschreibung
- Gehäuse: PRE-ELEC PP
- Schutzart: IP68
- Schaltspannung: 4‑40 V
- Schaltstrom: 1‑100 mA
- Anschlusskabel: 10 m
- Schaltwinkel: 10°
- Schutzklasse: II 1G Ex ia IIC T6 Ga
- Preis/Stk. UVP zzgl. USt. 2025 [€]: 188,52 €
- Rabattgruppe: 12
Verlängerungskabel für Antenne GSM Modul
Passend für
- GSM - Modul
Beschreibung
- Länge inkl. Anschlüsse: ca. 15 m
- Kabel-Typ: RG58
- Anschlüsse:1 x SMA Stecker (SMA/M) und 1 x SMA Buchse (SMA/F)
- Es darf pro GSM- Modul nur max. ein Verlängerungskabel verwendet werden
- Nutzbar im Temperaturbereich: ‑20 °C bis 85 °C
- Preis/Stk. UVP zzgl. USt. 2025 [€]: 166,47 €
- Rabattgruppe: 12
Signalanlage
Passend für
- Fäkalien-Rückstauautomaten Quatrix‑K Typ 3F
- Alle Muli Abwasserhebeanlagen
- Vorbehälteranlage-duo
- Muli-Max
- Powerlift–P/Powerlift-P/F-H
- Sinkamat –K/-KD
- Sinkamat-Z
- Sinkamat-K (Unterflur)
- Duo
- LipuLift-P
Beschreibung
- Selbstaufladend
- Mit potentialfreiem Kontakt
- Optisch und akustisch
- Ohne Kontaktgeber
- Zur Montage außerhalb des Ex-Bereiches
- Abmessungen: 175 x 125 x 75 mm B x H x T
- Schutzart: IP65
- Betriebsspannung: 230 V/AC 50/60 Hz
- Steckerfertig mit Kabel: 2 m
- Gewicht: 1,4 kg
- Preis/Stk. UVP zzgl. USt. 2025 [€]: 415,40 €
- Rabattgruppe: 12
Set aus Anschluss- und Überflutungsmodul
Passend für
- Rückstauverschlüsse Triplex-K
- DN 100 – DN 150
- Rückstauverschlüsse Quatrix-K
- Alle Abwasserhebeanlagen
- Alle Abscheider
- Vorbehälteranlage-duo
Beschreibung
- Meldung einer Leckage ausgelöst durch z.B. Rohrbruch
- Für elektrisch leitende Flüssigkeiten
- Optische und akustische Alarmmeldung ca. > 85 dB
- Potentialfreier Kontakt zur Störungsweiterleitung
- Schutzart: Steuerung IP 54; Fühler: IP68
- Betriebspannung: 230 V/AC 50/60 Hz
- Steckerfertig: 1,4 m
- Überflutungsmelder mit 10 m Kabel
- Gewicht: 1,1 kg
- Preis/Stk. UVP zzgl. USt. 2025 [€]: 345,25 €
- Rabattgruppe: 12
Rundschnurring
Signalhupe
Signalhupe
Passend für
- Pumpstationen mit Schaltgerät ACO MultiControl
- Abwasserhebeanlagen mit Schaltgerät ACO Multi Control
- LipuSmart-P
- LipuLift-P
Beschreibung
- Betriebsspannung: 230 V AC
- Stromaufnahme: 30 mA
- Abmessung: ∅62x85 mm (L/B x T)
- Schutzart: IP66
- 95 dB(A)
- Gewicht: 0,3 kg
- Preis/Stk. UVP zzgl. USt. 2025 [€]: 316,76 €
- Rabattgruppe: 12
Blitzleuchte
Blitzleuchte
Zulauf-/Absperrschieber DN 100
Passend für
- Fettabscheider aus Polyethylen
- Stärkeabscheider aus Polyethylen
- Vorbehälteranlagen Typ 2 und 4
- LipuMobil – Typ 0,5
Beschreibung
- Aus PVC
- Beiderseits Spitzende ∅110 für muffenlose Rohrsysteme aus Gusseisen oder Kunststoff
- Gesamtmaße: 176 x 360 mm (L x H)
- Max. Druck: 0,5 bar
- Gewicht: 5,9 kg
- Preis/Stk. UVP zzgl. USt. 2025 [€]: 936,02 €
- Rabattgruppe: 12
Zulauf-/Absperrschieber DN 100
Passend für
- Abwasserhebeanlagen
- Fettabscheider aus Polyethylen
- Stärkeabscheider aus Polyethylen
- Vorbehälteranlagen Typ 2 und 4
- LipuMobil-P – Typ 0,5
Beschreibung
- Aus PVC
- Beiderseits Steckmuffe 110 mm mit Lippendichtring
- Gesamtmaße: 176 x 330 mm (L x H)
- Max. Druck: 0,5 bar
- Gewicht: 3,1 kg
- Preis/Stk. UVP zzgl. USt. 2025 [€]: 725,58 €
- Rabattgruppe: 12
Zulauf-/Absperrschieber DN 200
Absperrschieber DN 80 für Druckseite
Handmembranpumpe R 1½"
Dreiwegehahn R 1½"































